Grundstück, 685 m2, Verkauf, Klis


Grundlegende Informationen

  • Objekt-KennnummerALFA-967
  • Verkaufspreis360 000 € (2 712 420 kn)
  • Standort Klis (21231)
  • Fläche685,00 m2
  • GrundstückstypBaugrundstück
  • StromanschlussAuf dem Grundstück
  • WasseranschlussAuf dem Grundstück
  • KanalisationKlärgrube

Baugrundstück zu verkaufen, Klis, 360 000 €

Wir vermitteln den Verkauf eines exklusiven Baugrundstücks mit 684 m2, gelegen in einer neu erschlossenen, hochwertigen Wohngegend mit offenem Panoramablick auf den Archipel von Split.

Das Grundstück befindet sich in einer ruhigen Sackgasse, umgeben von modernen Luxusvillen, und bietet somit höchste Privatsphäre, Ruhe und Wohnqualität. Die längliche Grundstücksform (Nordost–Südwest-Ausrichtung) sowie die leichte Hanglage nach Südwesten ermöglichen optimale Sonneneinstrahlung und spektakuläre Meerblicke.

Eine rechtskräftige Baugenehmigung liegt vor, sämtliche Erschließungs- und Wasseranschlusskosten sind vollständig bezahlt, ebenso die komplette Projekt- und Planungsdokumentation — sofortiger Baubeginn möglich.

Villenprojekt

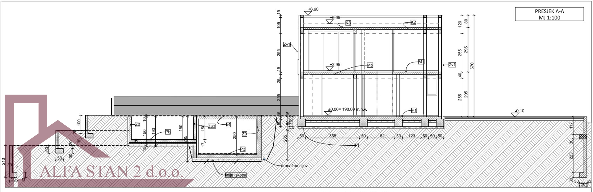
Geplant ist der Bau einer freistehenden Luxusvilla mit einer Gesamtbruttofläche von 229 m2, ergänzt durch einen privaten Swimmingpool (3,90 x 9,60 m / 37,44 m2).

Die Villa erstreckt sich über zwei Etagen und umfasst eine Wohneinheit:

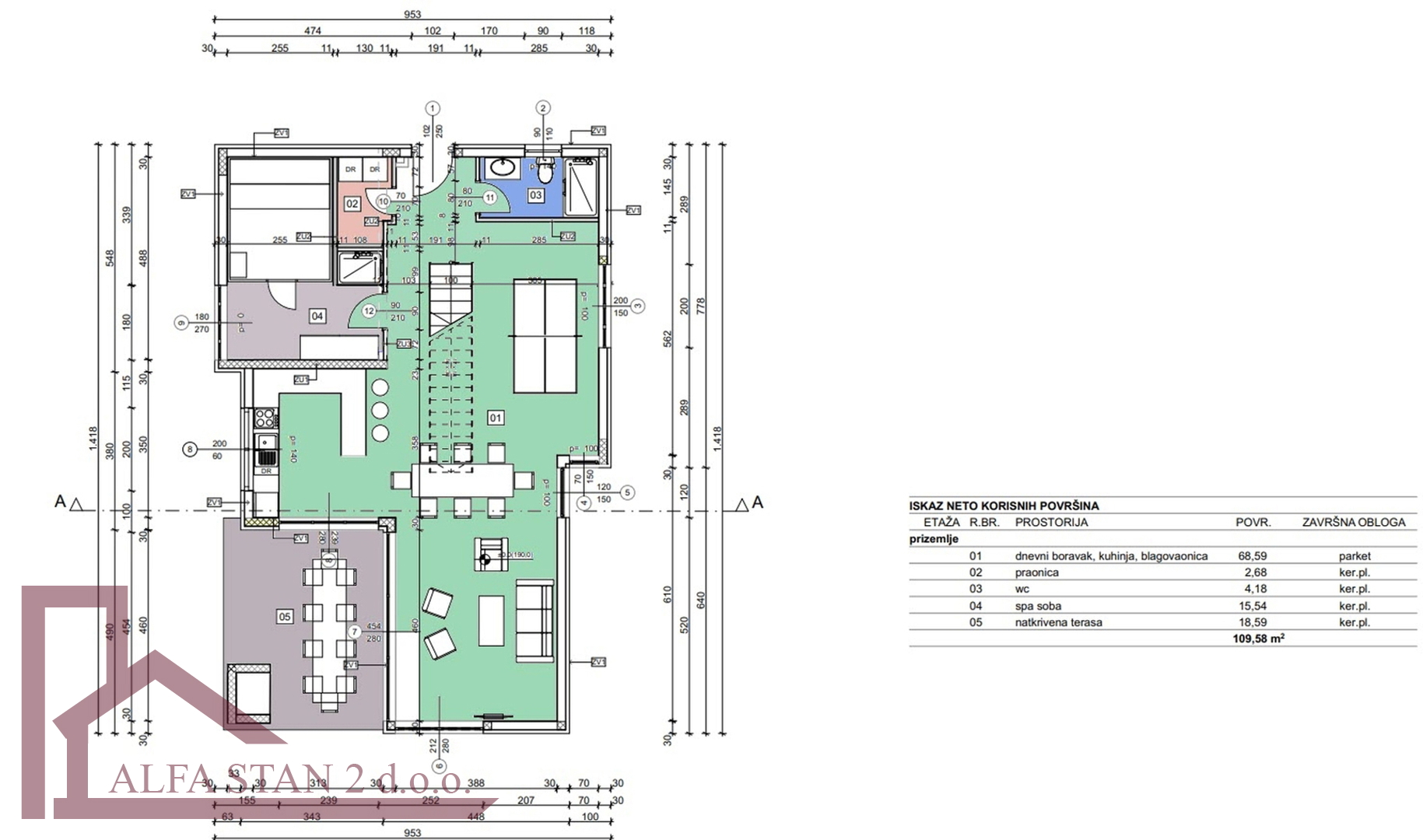
Erdgeschoss – 109,58 m2

Großzügiger Wohn-, Ess- und Küchenbereich (Open Space)
Hauswirtschaftsraum
Gäste-WC
Spa- / Wellnessraum
Überdachte Terrasse für entspanntes Wohnen im Freien

Obergeschoss – 119,00 m2

Vier Schlafzimmer mit jeweils eigenem Bad
Flur
Balkon sowie großzügige überdachte Terrasse mit Meerblick

Gesamte Nettonutzfläche: 228,58 m2

Weitere Highlights

Asphaltierte Zufahrt
Zwei private Stellplätze auf dem Grundstück
Exklusive Nachbarschaft mit Neubauvillen
Absolute Ruhe und Privatsphäre

Attraktive Lage

12 km bis zur Innenstadt von Split und zur Riva
10 km zum Strand Žnjan
22 km zum internationalen Flughafen Split
9 km zur Autobahnauffahrt Dugopolje (A1)

Diese Immobilie bietet eine einzigartige Gelegenheit zur Realisierung einer luxuriösen Villa in unmittelbarer Nähe von Split — ideal als privater Rückzugsort am Mittelmeer oder als erstklassige Investition im Premium-Ferienvermietungssegment.

KREDITINFORMATIONS- UND FINANZIERUNGSSERVICE

In Zusammenarbeit mit einem lizenzierten Unternehmen für Wohnbau- und Konsumentenkredite bieten wir Ihnen die bestmöglichen Finanzierungslösungen, um Ihnen Zeit und Geld auf dem Weg zu Ihrem Immobilienkredit zu sparen.

Kontaktieren Sie uns – wir stellen Ihnen alle erforderlichen Informationen kostenlos zur Verfügung und begleiten Sie sicher und professionell durch den gesamten Finanzierungsprozess bis zum Kauf Ihrer Traumimmobilie.

Sonstige Eigenschaften

  • Meerblick

Dokumentation

  • Baugenehmigung
  • Familienhaus-Projekt
  • Eigentümerliste

Standort der Immobilie

Kontaktieren Sie diesen Agenten

Ines Sunara

Diese Website hinterlässt "Cookies" auf Ihrem Computer zum Zweck der Inhaltsnavigation und anonymisierten Nutzungsstatistiken. Durch die Nutzung dieser Website bestätigen Sie, dass Sie dem zustimmen.