MAKARSKA, novi jednosoban stan za dugoročni najam 700€


Osnovne informacije

  • Šifra objektaALFA-939
  • Prodajna cijena700 € mj. (5 274 kn mj.)
  • LokacijaMakarska, Veliko Brdo (21300)
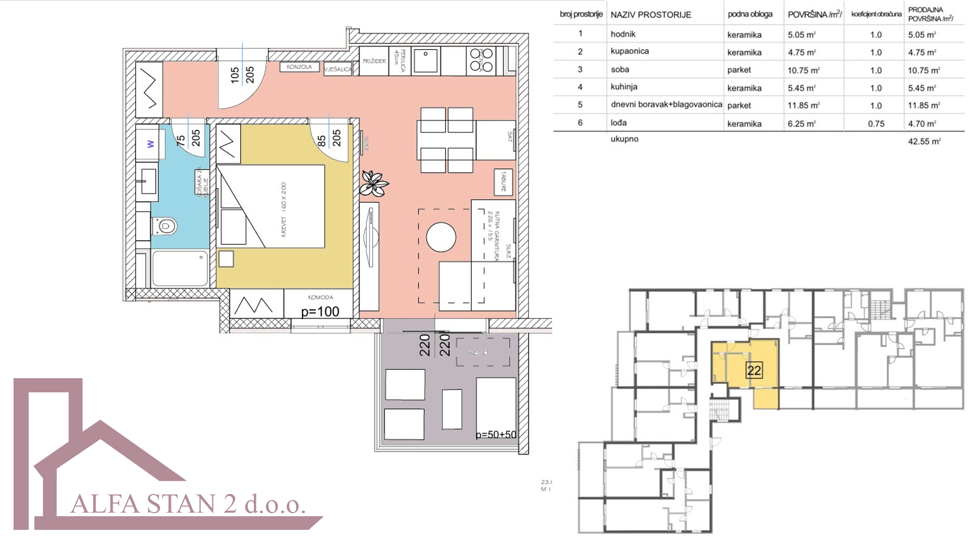
  • Kvadratura43,00 m2
  • Tip stana1S+DB
  • Energetski razredA+
  • Broj soba1
  • Broj spavaćih soba1
  • Broj kupaonica1
  • Kat2
  • Broj etažaJednoetažni
  • Ukupno katova3
  • Vrsta zgradeStambena
  • Godina izgradnje2025
  • Br. parkirnih mjesta1

Stan 1S+DB za najam, Makarska, 700 € mj.

Informacije i rezervacije na broj mobitela 095/455-2076 (Ines)

MAKARSKA, NOVOUREĐENI JEDNOSOBAN STAN NA DUGOROČNI NAJAM!!

USELJIVO ODMAH

CIJENA NAJMA: 700 € + režije

AGENCIJSKA PROVIZIJA 700 € +pdv

Kao agencija posredujemo u najmu jednosobnog stana površine 43 m2, smještenog na 2.katu novoizgrađene zgrade. Stan je kompletno opremljen i namješten modernim namještajem.
Iznajmljuje se isključivo na duži period, min. 1 godinu, uz obvezan potpis Ugovora o najmu.
Pripada mu i parkirno vanjsko mjesto a za dodatno parking garažno mjesto plaća se najam 100 € mjesečno.
U stanu se nalazi hodnik, kupatilo wc, jedna soba s bračnim krevetom, a kuhinja s blagovaonicom i dnevnim boravkom se nalazi u jednom prostoru s izlazom na lođu od 6 m2.
Zgrada je udaljena od plaže 650 metara, najbliža samoposluga je udaljena 50 metara, Osnovna škola 100 metara.

Razna svojstva

  • Lođa
  • PVC stolarija
  • Pogled na more

Grijanje

  • Struja
  • Klima

Instalacije

  • Struja
  • Voda
  • Kanalizacija

Stanje zgrade

  • Novogradnja

Orijentacija

  • Jug

Parking

  • Garaža

Dokumentacija

  • Građevinska dozvola
  • Uporabna u postupku

Prikaz nekretnine na karti

Kontaktiraj agenta

Ines Sunara

Ova stranica ostavlja "kolačiće" na Vašem kompjutoru za potrebe navigacije i anonimizirane statistike pristupa. Korištenjem ove stranice prihvaćate i potvrđujete ove "kolačiće".