Podstrana, Grljevac, prvo useljenje!!! Dvosoban stan za dugoročni najam sa prekrasnim pogledom


Osnovne informacije

  • Šifra objektaALFA-973
  • Prodajna cijena1 500 € mj. (11 302 kn mj.)
  • LokacijaPodstrana (21312)
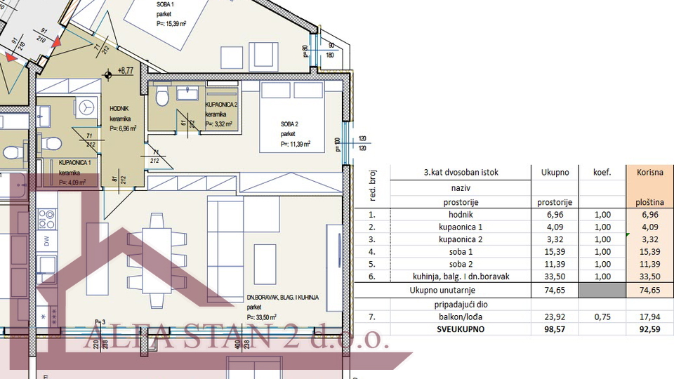
  • Kvadratura75,00 m2
  • Tip stana2S+DB
  • Energetski razredA+
  • Broj soba2
  • Broj spavaćih soba2
  • Broj kupaonica2
  • Kat3
  • Broj etažaJednoetažni
  • Ukupno katova3
  • Vrsta zgradeStambena
  • Godina izgradnje2025
  • Udaljenost od mora50 m
  • Br. parkirnih mjesta1

Stan 2S+DB za najam, Podstrana, 1 500 € mj.

Za sve dodatne informacije i razgledavanje, javite se na broj mob. 095 /455 -2076 (Ines)

PRVO USELJENJE!!!

Najam: isključivo dugoročno

Iznos mjesečnog najma:1500€ + režije

Agencijska provizija, jednokratno :1500€ +pdv



Kao agencija posredujemo u najmu moderno uređenog stana površine 75m2 + lođa 24 m2 u novogradnji, udaljen svega 50 metara od mora, na iznimnoj lokaciji u Podstrani.

Stan se nalazi na 3. katu stambene zgrade i odlikuje se velikom lođom s otvorenim, prekrasnim pogledom na more, idealnom za uživanje tijekom cijele godine. Prostor je pažljivo osmišljen, svijetao i funkcionalan, opremljen potpuno novim namještajem i uređajima.

U stanu se nalaze dvije spavaće sode sa bračnim krevetom, dvije kupaonice, dok kuhinja sa blagovaonicom i dnevnim boravkom se nalazi u jednom prostoru sa izlazom na južnu lođu od 18 m2 sa koje se pruža fantastičan pogled na more i Split.

U sobama i dnevnom boravku se nalaze klima uređaji a podno grijanje u kupatilima.

Karakteristike stana:

novogradnja, prvi najam
potpuno novoopremljen
velika lođa s panoramskim pogledom na more
garažno parkirno mjesto u podrumu
mirna i atraktivna lokacija, blizina mora i svih sadržaja

Stan je trenutno u završnoj fazi uređenja i čišćenja te će biti spreman za useljenje od 15.02.26.g.

Razna svojstva

  • Lođa
  • Protuprovalna vrata
  • PVC stolarija
  • Pogled na more

Grijanje

  • Klima

Instalacije

  • Struja
  • Voda
  • Kanalizacija

Stanje zgrade

  • Novogradnja

Orijentacija

  • Istok
  • Jug

Parking

  • Garaža

U blizini

  • Trgovina
  • Javni prijevoz
  • Park
  • Dječji vrtić

Dokumentacija

  • Građevinska dozvola
  • Uporabna u postupku

Prikaz nekretnine na karti

Kontaktiraj agenta

Ines Sunara

Ova stranica ostavlja "kolačiće" na Vašem kompjutoru za potrebe navigacije i anonimizirane statistike pristupa. Korištenjem ove stranice prihvaćate i potvrđujete ove "kolačiće".